در بسیاری از ساختمانها سیستم اتوماسیون ساختمان وجود دارد که خیلی از فرآیندهای داخل ساختمان، مثل تهویه هوا و سیستمهای گرمایشی و سرمایشی را اتوماسیون یا خودکارسازی میکند. پروتکل BACnet پروتکل ارتباطی برای اتوماسیون ساختمان است. مشخصات این پروتکل تبدیل به استاندارد بینالمللی شده و همچنین، انجمن گرمایش، سرمایش و تهویه مطبوع آمریکا (ASHRAE) نیز از این پروتکل پشتیبانی میکند. مهم نیست که سازنده تجهیزات اتوماسیون ساختمان متعلق به چه برندی باشند، پروتکل هوشمند سازی BACnet یک پروتکل بازاست و با تمامی برندهای سازنده اتوماسیون ساختمان تطبیقپذیر است. به دلیل تطبیقپذیری و باز بودن پروتکل BACnet سازمان بینالمللی استانداردسازی و مؤسسهی استانداردهای ملی آمریکا این پروتکل را تبدیل به یک استاندارد معیار کردهاند. کار پروتکل BACnet این است که از ارتباطات قوی بین سیستمهای ساختمانی متفاوت حمایت میکند.
پروتکل BACnet: شبکهی اتوماسیون و کنترل ساختمان
پروتکل هوشمند سازی BACnet یک پروتکل شبکهای است که در سیستمهای اتوماسیون ساختمانها (BAS) برای کنترل تبادل دادهها بین دستگاهها و اجزای مختلف مورد استفاده قرار میگیرد. پروتکل BACnet یک استاندارد شبکه است که توسط مهندسان سردخانه و تهویه مطبوع گرمایش آمریکایی (American Heating Refrigerating and Air Conditioning) توسعه یافته است. موسسهی استاندارد ملی آمریکا (ANSI) و سازمان بینالمللی استانداردسازی (ISO) نیز این پروتکل هوشمند سازی را به عنوان استانداردی برای شبکهسازی سستمهای اتوماسیون ساختمان تایید کردهاند.
استفاده از سیستم اتوماسیون ساختمان یک انتخاب برتر برای بسیاری از صنعتها است و نیاز به اجرای کارآمد آن نیز ضروری است. در هر سیستم اتوماسیون ساختمان، ارتباطات فاکتوری مهم در موفقیت آن است. ارتباط باید به موقع و بدون خطا باشد. این تنها در صورتی امکانپذیر است که تولیدکنندگان از یک مجموعه قوانین خاص و یکسان پیروی کنند که به آن پروتکل شبکه گفته میشود. اگر پروتکل شبکه در سیستم رعایت نشود، میتواند اطلاعات ضروری را هدر دهد و در نتیجه تصمیمات اشتباهی بگیرد.
(از مطلب پروتکل وای فای نیز بازدید کنید.)
ویژگیهای پروتکل BACnet
پروتکلِ BACnet تمام ویژگیهای یک پروتکل استاندارد را برآورده میسازد و پذیرش جهانی آن نیز نشان میدهد که این پروتکل با موفقیت در تمام بازارها اجرا میشود. از ویژگیهای پروتکل BACnet میتوان به موارد زیر اشاره کرد:
- این پروتکل هوشمند سازی یک پروتکل باز است.
- برای اجرای این پروتکل نیازی به هزینهی مجوز وجود ندارد.
- تعداد زیادی از تولیدکنندگان این استاندارد را پذیرفتهاند که این امر باعث شده استفاده از پروتکلِ BACnet برای اجرا کمتر به یک فروشندهی خاص وابسته باشد.
(به مطلب پروتکل KNX نیز رجوع کنید.)
پروتکل هوشمند سازی BACnet یک پروتکل باز میباشد.
استفاده از پروتکل BACnet در اتوماسیون ساختمان
مزیت پروتکل BACnet قابلیت همکاری بین بسیاری از سیستمها و دستگاههای مورد استفاده در سیستمهای اتوماسیون ساختمان است. پروتکل BACnet این کار را با ارائهی یک روش استاندارد از تمام اعمال و اقداماتی انجام میدهد که در یک سیستم ارتباطی شبکه انجام شده و اتفاق میافتد. استاندارد BACnet به سه روش پیادهسازی و اجرا میشود تا هدف قابلیت همکاری را به انجام برساند:
- نمایش اطلاعات به عنوان یک شیء
- ارتباط بین دستگاههای BACnet
- انتخاب فناوریهای شبکه
(از مطلب پروتکل Z-wave نیز بازدید کنید.)
نمایش اطلاعات به عنوان یک شیء با پروتکل BACnet
با پروتکل هوشمند سازی BACnet تمام اطلاعات ضروری و مربوطه در قالب یک شیء نمایش داده میشود. این بدان معناست که هر شیء نشاندهندهی داده یا اطلاعات در خصوص یک جزء یا دستگاه است. این شیئی است که از طریق شبکه قابل دسترسی است. نمایش اطلاعات به صورت یک شیء این مزیت را فراهم میکند که میتوان اشیاء جدیدی ایجاد کرد و یا میتوان اشیاء موجود را با توجه به نیازهای کاربر تغییر داد.
(به مطلب پروتکل Zigbee نیز رجوع کنید.)
یک شیء اطلاعات فیزیکی مانند ورودیها و خروجیهای فیزیکی و همینطور اطلاعات غیرفیزیکی مانند نرمافزار یا محاسبات را نمایش میدهد. توجه به این نکته مهم است که هر شیء ممکن است نشاندهندهی یک بخش از اطلاعات یا گروهی از اطلاعاتی باشد که همان عملکرد خاص را انجام میدهند.
با پروتکل هوشمند سازی BACnet امکان نمایش اطلاعات به صورت یک شئ فراهم میشود.
تعریف دستگاه BACnet
همهی اشیاء باید دارای شناسه، نوع داده (یعنی ارزش آنالوگ یا دیجیتال) و اطلاعات اضافی دیگر مانند فقط خواندنی، اصلاحشده توسط دستگاههای دیگر و غیره باشد. پروتکلِ BACnet در مجموع 23 شیء استاندارد را تعریف میکند و تقریبا تمام عملکردهای همهمنظوره در یک سیستم اتوماسیون ساختمان را پوشش میدهد. مجموعهای از اشیاء که عملکرد خاصی را انجام میدهند، دستگاه BACnet نامیده میشود.
(از مطلب پروتکل DALI نیز بازدید کنید.)
ارتباط بین دستگاههای پروتکل BACnet
مدل ارتباطی پروتکلِ BACnet مدل سرویسگیرنده-سرویسدهنده (Client-Server model) است. این مدل با سنجش پیامها بین کنترلگر و دستگاههای مختلف سر و کار دارد. در این مدل ارتباطی، زمانی که داده مورد نیاز داده وجود دارد، سرویسگیرنده درخواستی را به سرویسدهنده ارسال میکند. سرویسدهنده یا سرور نیز در مقابل، به نوبهی خود با اطلاعات مورد نیاز پاسخ میدهد که به آن پاسخ سرور گفته میشود. پروتکل BACnet میتواند 38 نوع خدمات ارائه کند که به موارد زیر تقسیم میشوند:
- خدمات هشدار و رویداد
- خدمات دسترسی به فایل
- خدمات دسترسی به اشیاء
- خدمات مدیریت دستگاه از راه دور
- خدمات ترمینال مجازی
(پیشنهاد میکنیم از مطلب پرده هوشمند غافل نشوید.)
انتخاب فنآوریهای شبکه
گام نهایی در اجرا و پیادهسازی پروتکل هوشمند سازی BACnet انتخاب یک تکنولوژی شبکه است که از طریق آن تمام اطلاعات به مقصدهای تعیین شده ارسال شده و بازگردند. برخی از این تکنولوژیهای شبکه شامل اترنت، IP، Lon Talk، زیگبی (ZigBee)، ARCnet و MS/TP میشود. دستگاههایی که از پروتکل BACnet استفاده میکنند، BACnet اصلی یا Native BACnet نامیده میشوند که بدان معناست که دستگاهها سیگنالهایی تولید میکنند که با فناوری BACnet سازگار است و میتواند با هر شبکهی BACnet به یکدیگر متصل شوند.
(به صفحه سیستم ایمنی هوشمند نیز سری بزنید.)
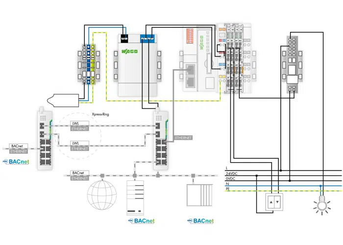
لایههای پروتکل BACnet
پروتکل BACnet شامل لایههایی از جمله لایهی فیزیکی، لایهی پیوند، لایهی شبکه، لایهی برنامه و لایهی امنیتی میشود که در ادامه در مورد هر کدام از این لایهها به صورت مجزا صحبت خواهیم کرد.
لایهی فیزیکی پروتکلِ BACnet
لایههای بالایی BACnet به لایهی فیزیکی وابسته نیستند. لایهی فیزیکی BACnet امکان پیادهسازی این پروتکل هوشمند سازی روی شبکههای مختلف را امکانپذیر میسازد. لایههای فیزیکی BACnet برای موارد زیر مشخص شدهاند:
- ARCNET
- اترنت
- تونل IP
- BACnet/IP
- RS-232
- RS485
- Lonworks/LonTalk
RS232 برای ارتباط نقطه به نقطه (ارتباط از راه دور) مورد استفاده قرار میگیرد. RS485 نیز از حداکثر 32 گره با فاصلهی 1200 متر با سرعت 76 کیلوبیت بر ثانیه پشتیبانی میکند.
(صفحه روشنایی هوشمند نیز میتواند برایتان مفید باشد.)
لایهی پیوند پروتکلِ BACnet
پروتکل هوشمند سازی BACnet را میتوان مستقیما با استفاده از لایههای پیوند LonTalk و IEEE802.2 اجرا و پیادهسازی کرد که از لایهی پیوند داده PTP (نقطه به نقطه) برای اتصالات RS232 و از لایهی پیوند داده MS/TP برای اتصالات RS-485 استفاده میکند. این استاندارد لایهی پیوند مجازی BACnet یا BVLL را مشخص میکند که تمام خدمات مورد نیاز دستگاه BACnet را در این لایهی پیوند ذکر میکند.
IP BVLL اطلاعات کنترل مورد نیاز را در سرساز یا هِدِر اطلاعات کنترل پیوند مجازی BACnet کپسوله میکند و با توجه به آن دستگاههای BACnet میتوانند مستقیما از طریق شبکههای IP بدون نیاز به هیچ دستگاه روتر ارتباط برقرار کنند. BACnet از مفهوم BBMD استفاده میکند که الزامات پخش مورد نیاز لایهی پیوند مورد نظر را پیادهسازی میکند. BBMD مخفف دستگاه مدیریت پخش BACnet است و بر اساس این، پیام پخش BACnet به پیامهای چندبخشی یا پخشی مبتنی بر IP تبدیل میشود.
(مطلب اورویبو نیز میتواند برایتان مفید باشد.)
لایهی شبکهی BACnet
لایهی شبکهی پروتکل هوشمند سازی BACnet آدرسهای شبکهی مورد نیاز برای مسیریابی را مشخص میکند. شبکهی BACnet متشکل از یک یا چند بخش است که این بخشهای BACnet زمانی که از تکنولوژی LAN مشابهی استفاده میکنند، با استفاده از پلها به هم متصل میشوند. اگر این بخشها از پروتکلهای LAN مختلف استفاده کنند، با استفاده از روترها به هم متصل یا مرتبط میشوند.
(از مطلب موتورخانه هوشمند غافل نشوید.)
لایهی کاربرد پروتکلِ BACnet
پروتکل هوشمند سازی BACnet لایههای ارائه و کاربرد را از هم جدا نمیکند و از قابلیت اطمینان و مکانیسمهای تقسیمبندی و توالییابی که معمولا با لایههای انتقال و نشست مرتبط هستند، مراقبت میکند. BACnet دستگاههایی را به عنوان اشیا مشخص میکند که سرویسهای اولیه را مبادله میکنند. این سرویسهای اولیه با استفاده از ASN.1 توصیف میشوند و با استفاده از ASN.1 BER نیز سریالسازی میشوند.
(از مطلب اجزای سیستم هوشمند سازی نیز دیدن کنید.)
لایهی امنیت پروتکلِ BACnet
اما منظور از لایهی امنیت پروتکل هوشمند سازی BACnet چیست؟ دستگاه A میتواند کلید بخش را از کلید سرور درخواست کند تا ارتباطی ایمن با دستگاه B برقرار سازد. این کلید توسط کلید سرور به دستگاه A و دستگاه B تحویل داده میشود. به این کلید ‘SKab‘ گفته میشود.
پروتکل هوشمند سازی BACnet از رمزگذاری 56 بیتی DES استفاده میکند. دستگاه A و دستگاه B از طریق تبادل چالشها (به عنوان مثال رمزگذاری اعداد تصادفی با کلید بخش) یکدیگر را احراز هویت میکنند. پیام چالش شامل شناسه (به عنوان مثال InvokeID) است. این ویژگی برای تمام تراکنشهای آتی که قرار است احراز هویت شوند، استفاده میشود.
(در مطلب پروتکلهای اینترنت اشیا اطلاعات متنوعی در خصوص انواع پروتکلها خواهید یافت.)
کاربرد پروتکل BACnet
همانطور که پیشتر نیز اشاره کردیم، BACnet شکل کوتاه Data Communication Protocol for Building یا شبکهی اتوماسیون و کنترل ساختمان است و یکی از محبوبترین پروتکلهای اتوماسیون و کنترل محسوب میشود که در محصولات فروشندگان پیشرو صنعت از جمله جانسون کنترلز (Johnson Controls)، تکنولوژیهای ساختمان زیمنس، KMC Controls، سیستمهای تلهترول (Teletrol Systems) و غیره مورد استفاده قرار میگیرد.
این پروتکل از ابتدا به عنوان یک پروتکل هوشمند سازی باز و مستقل توسعه یافت و چندین پشته از این پروتکل به صورت رایگان در دسترس است. کاربردهای پروتکل BACnet بسیار گسترده است و شامل کنترل روشنایی، امنیت، کنترل حریق، آلارم، سیستم تهویهی مطبوع (گرمایش، تهویه، تهویهی هوا) و غیره میشود.
(از مطلب نصب هوشمند سازی ساختمان غافل نشوید.)
کنترل حریق، آلارم، کنترل روشنایی و امنیت جز کاربردهای پروتکل BACnet است.
مزایای استفاده از پروتکل BACnet
یکی از مزیتهای استفاده از پروتکل BACnet این است که کار با این پروتکل میتواند باعث شود تا اشیاء ساخته شده از برندهای مختلف اتوماسیون ساختمان با یک پروتکل ارتباطی به یکدیگر مرتبط شوند. پروتکل BACnet برای سیستمهای اتوماسیون ساختمان میتواند یک راه ارتباطی با کارایی زیادی را ارائه دهد.
علاوه بر این، پروتکل هوشمند سازی BACnet میتواند عملکرد واحدهای مختلف در ساختمان را به صورت مجزا مدیریت کرده و کارکرد آنها را آسانتر کند. همچنین، پروتکل BACnet در مورد اهداف زیست محیطی ساختمانها مسئولیتپذیر است و باعث میشود که مدیران ساختمان و مالکان ساختمان بتوانند اهداف مربوط به صرفهجویی در مصرف انرژی را بیشتر پیش ببرند.
پروتکلِ BACnet میتواند با چند لایه فیزیکی کار کند
پروتکلِ BACnet بر خلاف بسیاری از پروتکلها، فقط به یک لایهی فیزیکی محدود نمیشود. سازندگان دستگاههای BACnet میتوانند بسته به کاربرد نهایی دستگاه، لایه فیزیکی را مشخص کنند. برای مثال، آنها میتوانند بسته به نوع استفادهی کاربر از پروتکل در یک محیط با شرایط آبوهوایی دشوار، تصمیم بگیرند که لایه فیزیکی آن چگونه باشد. از سوی دیگر، آنها میتوانند لایه فیزیکی را بر اساس مقرون به صرفه بودن و مناسب بودن قیمت آن تعیین کنند. دستگاههای روتر برای انتقال پیام بین لایههای فیزیکی مختلف در دسترس است.
برنامه تصدیق آزمایشگاههای آزمودن پروتکلِ BACnet
یک نوع برنامه به عنوان برنامه تصدیق آزمایشگاههای آزمودن پروتکل BACnet به این منظور به وجود آمد تا بتواند قابلیت همکاری بین تولیدکنندگان دستگاه را آسانتر کند. این برنامه به تولیدکنندگان سیستم اتوماسیون ساختمان این فرصت را ارائه میدهد تا دستگاههای پروتکلِ BACnet را توسط یک نهاده دیگر آزمایش کنند.
وظیفه برنامه آزمایشگاههای آزمودن پروتکل BACnet این است که دستگاههایی که توسط این تولیدکنندگان ساخته میشوند را برای تطابق با استاندارد پروتکل هوشمند BACnet تأیید کند. همچنین، دروازههای بین شبکهای بین شبکه و پروتکلِ BACnet میتوانند باعث انتقال اطلاعات بین دیگر سیستمها و پروتکلها شوند و میتوانند باعث شوند که پروتکلهای قدیمیتر اینترنت، سیستمهای نورپردازی اختصاصی و دیگر سیستمها وارد شبکه پروتکلِ BACnet شوند.
سخن پایانی
پروتکلِ BACnet یک استاندارد بینالمللی در مورد فرآیندهای ارتباطی برای اتوماسیون ساختمان است. مزیت اصلی این پروتکل را میتوان به این صورت خلاصه کرد: پروتکلِ BACnet میتواند دستگاههای مختلف برندهای گوناگون را در یک شبکه با همدیگر ادغام کند و باعث همکاری بین آنها شود. همچنین، استفاده از این پروتکل میتواند اهداف مربوط به صرفهجویی در انرژی و مسئولیت پذیری در قبال محیط زیست را بیشتر پیش ببرد. با تمام این مطالب میتوان گفت که استفاده از پروتکلِ BACnet برای انتقال دادهها بین دستگاههای هوشمند اتوماسیون ساختمان انتخاب مناسبی است.














